RCAF Station Summerside
Canadian Forces Base Summerside
General Information
Location/Base: Summerside
Province: Prince Edward Island
Dates of Operation or Period of Information:
Units:
- No 9 Service Flying Training School
- Formed – January 1941
- Relocated – 6 July 1942 to Centralia, Ontario
- Aircraft Flown:
- 1 General Reconnaissance School
- Formed – 6 July 1942
- Central Air Navigation School
- Formed – 15 September 1945
- Aircraft Flown:
- 2 (M) Operational Training Unit
- Formed – 14 November 1953
- Aircraft Flown:
- 1 Air Navigation School
- Formed – fall 1948
- Aircraft Flown:
- Maritime Proving & Evaluation Unit
- Formed – 1 August 1959
- Aircraft Flown:
- 880 Maritime Reconnaissance Sqn
- Formed – 4 August 1981
- Aircraft Flown:
- Relief Landing Field – Mount Pleasant
- Relief Landing Field – Wellington
Aircraft Flown:
- 1 GRS
- Avro Anson
- CANS
- Avro Anson
- 1 ANS
- Avro Lancaster
- 2 (M) OTU
- Avro Lancaster
- Lockheed P2V-7 Neptune
- Canadair CP-107 Argus
- MPEU
- Lockheed P2V-7 Neptune
- Canadair CP-107 Argus
- 880 MR Sqn
- CP-121 Tracker

Image from the RCAF Pilots Manual of Aerodromes and Seaplane Bases circa 1942.
Commanding Officers:
Financial Impact:
Date / Reason for Closure:
- 1 GRS – 3 Feb 45, reduced need for aircrew
- CANS B late 45
- 1 ANS B Oct 53
- 2 (M) OTU – 1968
- MPEU – 8 Aug 78, moved to Greenwood
- 880 MR – 1990/91, end of Tracker ops
Current Status: civil airfield CYSU
Commemoration







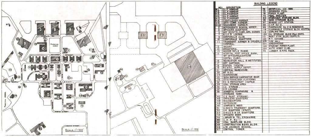
Site Plan – 1959

(1959) (Source 1 Canadian Air Division)
To access a high resolution PDF please click on Image.
Site Plan – Unknown Year

(Source: The John Griffin Library, 1 Canadian Air Division)
Click to download a higher resolution JPG.
Location – Google Map
Photo Gallery

Daily Diary – Links – No. 9 Service Flying Training School
Daily Diary – Index – No. 1 General Reconnaissance School
1943
1945
Fatalities
This list was compiled from the entries in the Daily diaries of No. 9 Service Flying Training School, No. 1 General Surveillance School, and other sources. The list likely does not include all fatalities of personnel who died while stationed at RCAF Station Summerside, and likely includes some errors. Currently this list contains 37 personnel.
20 March 1941
26 April 1941
1 June 1941
20 July 1941
22 July 1941
6 August 1941
11 September 1941
16 September 1941
18 November 1941
12 December 1941
12 January 1942
11 June 1942
7 August 1942
11 August 1942
- P/O Lloyd Ernest Burley
- P/O John Vincent Nutter
- Sgt John Beaver Llewellyn-Roberts
- AC1 Edward Charles Robert Senior
29 October 1942
- Sgt Cyril Howard Bennett
- Sgt George Patrick Harris
- P/O Ronald William Reeves
- P/O Charles Howard Rudge
5 January 1943
- F/Sgt Paul Clevland Bernstein
- Sgt Eric Harold Johnson
- Sgt Alexander Russell King
- Sgt William Frederick Thompson
15 October 1943
7 August 1944
14 May 1951
- F/O Owen Miles Foster
- F/C Gerald Michael Higgins
- F/O Joseph Jean Louis Elie Rodier
- F/C Frank Wilfred Smith
25 April 1952
- F/L Walter James Norval Burnett
- F/O Kenneth Roland Carter
- F/L Kenneth Edwards Lussier
- Cpl Joseph Bernard Marcel Lachaine
11 August 1952
9 October 1953
Notable Alumni
Aircraft List
Notes
Course List
No 9 Service Flying Training School
Course List
No 1 General Reconnaissance School
For More information – External Links
- Wikipedia
- MilitaryBruce.com – Canadian Military History by Bruce Forsyth
- Site Plan:
- Aerodrome Disposal File: